ข่าวใหม่สวัสดีเพื่อนสมาชิก และผู้ชื่นชอบแบบบ้านสวยๆ หรือกำลังหาแบบบ้าน ไอเดียสำหรับสร้างบ้านในฝันของตัวเองกันอยู่ ฝากติดตามเพจและเว็บไซต์ของเราไว้ด้วยนะครับ เรามีแบบบ้านสวยและไอเดียบ้านดีๆ มาให้ชมกันเป็นประจำทุกวัน สำหรับบ้านที่เรานำมาฝากวันนี้ ลักษณะออกแบบเป็นบ้านสไตล์โมเดิร์นรูปทรงเหลี่ยมแบบกล่องสวยทันสมัย ตัวบ้านยกระดับพื้นสูงสวยเด่น ชมกันต่อเลยนะครับ
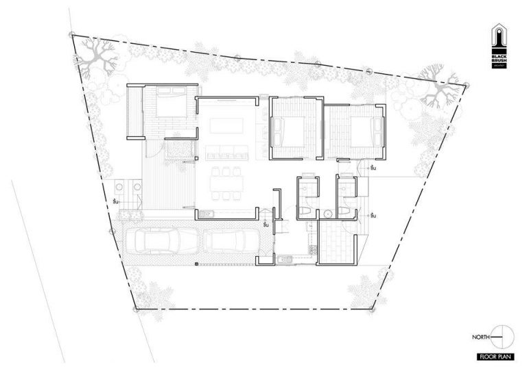
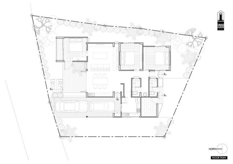
สำหรับรายละเอียดและฟังก์ชั้นภายใน หน้าบ้านมีระเบียบสำหรับนั่งเล่นพักผ่อนและด้านข้างขวามือเป็นโรงจอดรถมุงหลังแบบแบนเรียบพร้อมทำผนังกันสาดเป็นช่องช่วยให้บ้านโปร่งไม่ทึบเกินไป การออกแบบจัดสรรพื้นที่ใช้สอยภายในครอบพร้อม ประกอบด้วย 3 ห้องนนอน 2 ห้องน้ำ 1 ห้องครัว และห้องโถงกลาวพักผ่อนพร้อมโรงจอดรถ พื้นที่ใช้สอย 184 ตร.ม.
รูปภาพภายในบ้าน
รูปภาพผังภายใน
ผลงานที่มา BLACK BRUSH Architect
ข้อมูล idea-home
งบประมาณ –
แบบบ้าน ชั้นเดี่ยว
ทางเว็บ bannhouse.com ไม่ได้รับสร้างบ้านหรือจัดสวน เราเพียงแชร์ให้ดูเป็นไอเดียเท่านั้น
ข่าวใหม่



