วันจันทร์ 20 เมษายน 2569
ติดตามเว็บไซต์
หน้าแรก > บ้าน ไอเดียบ้าน > 30 แบบบ้านสำหรับ “ครอบครัวขนาดเล็ก” ดีไซน์กะทัดรัด ฟังก์ชันครบครัน ตอบโจทย์คนยุคใหม่

30 แบบบ้านสำหรับ “ครอบครัวขนาดเล็ก” ดีไซน์กะทัดรัด ฟังก์ชันครบครัน ตอบโจทย์คนยุคใหม่

หมวดหมู่ : บ้าน, ไอเดียบ้าน 24 เมษายน 2020 เปิดอ่าน 1,063 ครั้ง

เมื่อพูดถึงการสร้างบ้านในยุคปัจจุบัน ส่วนใหญ่แล้วก็มักจะเลือกบ้านที่มีขนาดเล็ก หรือคอนโดกันเป็นส่วนใหญ่

เนื่องด้วยราคาที่ดินที่แพงขึ้น หรือส่วนหนึ่งก็เพราะคนสมัยนี้ต่างมีครอบครัวน้อยลง และเริ่มอยู่อาศัยคนเดียวในวัยทำงานกันมากขึ้น ดังนั้นบ้านที่เราจะพาไปชมนั้น บอกเลยว่าเหมาะสำหรับกลุ่มคนเหล่านี้จริงๆ
โดยตัวอย่างบ้านแต่ละหลังนั้น เหมาะสำหรับ ครอบครัวขนาดเล็ก มีขนาดไม่เกิน 200 ตร.ม. ผลงานโดย SeaconHome ซึ่งบ้านทั้งหมดนี้จะแบ่งออกเป็น แบบบ้านชั้นเดียวแบบบ้านสองชั้น และแบบบ้านสามชั้น นอกจากนี้ยังมีดีไซน์ที่แตกต่างและหลากหลาย ไว้เป็นตัวอย่างสำหรับเพื่อนๆ ทุกคน ที่กำลังมองหาแนวทางในการสร้างบ้านค่ะ ลองไปชมกันเลย

แบบบ้านชั้นเดียว

1. พอดี 2

3 ห้องนอน 1 ห้องน้ำ 0 ที่จอดรถ
พื้นที่ใช้สอย : 90 ตร.ม.
พื้นที่ที่ดิน : 47 ตร.วา

แปลนบ้าน

2. พอดี 3

3 ห้องนอน 1 ห้องน้ำ 0 ที่จอดรถ
พื้นที่ใช้สอย : 114 ตร.ม.
พื้นที่ที่ดิน : 60 ตร.วา

แปลนบ้าน

3. กตัญญู 2

3 ห้องนอน 2 ห้องน้ำ 2 ที่จอดรถ
พื้นที่ใช้สอย : 167 ตร.ม.
พื้นที่ที่ดิน : 72 ตร.วา

แปลนบ้าน

4. กตัญญู 1

2 ห้องนอน 2 ห้องน้ำ 2 ที่จอดรถ
พื้นที่ใช้สอย : 169 ตร.ม.
พื้นที่ที่ดิน : 68 ตร.วา

แปลนชั้น 1

แบบบ้านชั้นสอง

5. ธงฟ้า 10

2 ห้องนอน 2 ห้องน้ำ 0 ที่จอดรถ
พื้นที่ใช้สอย : 118 ตร.ม.
พื้นที่ที่ดิน : 35 ตร.วา

แปลนชั้น 1

แปลนชั้น 2

6. ธงฟ้า 2

3 ห้องนอน 2 ห้องน้ำ 1 ที่จอดรถ
พื้นที่ใช้สอย : 119 ตร.ม.
พื้นที่ที่ดิน : 30 ตร.วา

แปลนชั้น 1

แปลนชั้น 2

7. Newport 128

3 ห้องนอน 2 ห้องน้ำ 1 ที่จอดรถ
พื้นที่ใช้สอย : 128 ตร.ม.
พื้นที่ที่ดิน : 33 ตร.วา

แปลนชั้น 1

แปลนชั้น 2

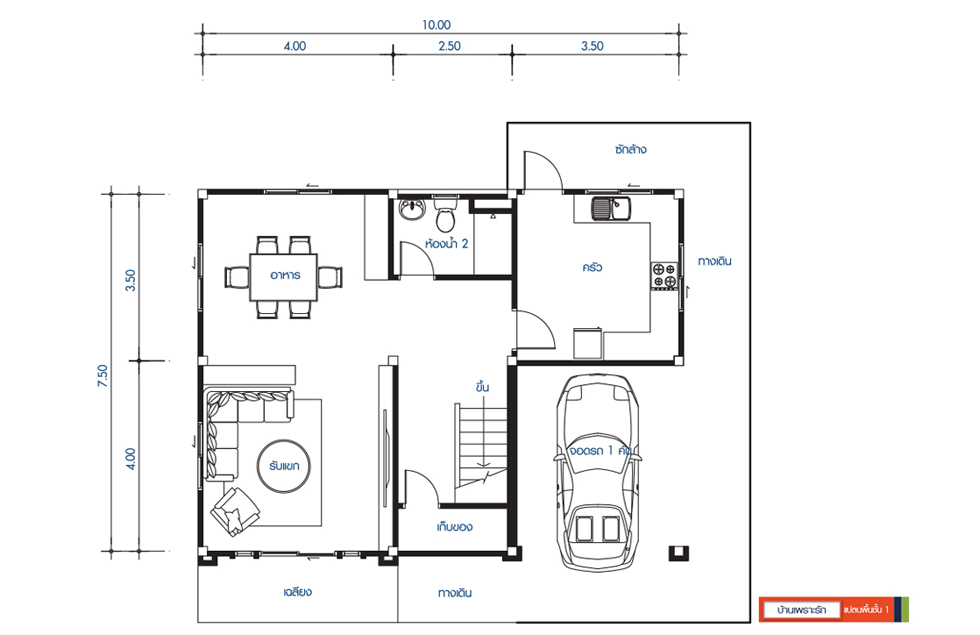
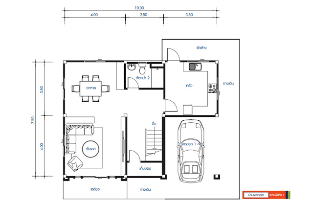
8. เพียงรัก

3 ห้องนอน 2 ห้องน้ำ 1 ที่จอดรถ
พื้นที่ใช้สอย : 145 ตร.ม.
พื้นที่ที่ดิน : 33 ตร.วา

แปลนชั้น 1

แปลนชั้น 2

9. ซุปเปอร์คุ้ม พลัส 4

3 ห้องนอน 2 ห้องน้ำ 1 ที่จอดรถ
พื้นที่ใช้สอย : 151 ตร.ม.
พื้นที่ที่ดิน : 60 ตร.วา

แปลนชั้น 1

แปลนชั้น 2

10. Mini Modern 4

2 ห้องนอน 2 ห้องน้ำ 0 ที่จอดรถ
พื้นที่ใช้สอย : 154 ตร.ม.
พื้นที่ที่ดิน : 36 ตร.วา

แปลนชั้น 1

แปลนชั้น 2

11. ซุปเปอร์คุ้ม 11

5 ห้องนอน 2 ห้องน้ำ 1 ที่จอดรถ
พื้นที่ใช้สอย : 156 ตร.ม.
พื้นที่ที่ดิน : 32 ตร.วา

แปลนชั้น 1

แปลนชั้น 2

12. ซุปเปอร์คุ้ม 4

3 ห้องนอน 2 ห้องน้ำ 1 ที่จอดรถ
พื้นที่ใช้สอย : 160 ตร.ม.
พื้นที่ที่ดิน : 35 ตร.วา

แปลนชั้น 1

แปลนชั้น 2

13. Mini Colour 1

4 ห้องนอน 3 ห้องน้ำ 2 ที่จอดรถ
พื้นที่ใช้สอย : 165 ตร.ม.
พื้นที่ที่ดิน : 44 ตร.วา

แปลนชั้น 1

แปลนชั้น 2

14. พบรัก

3 ห้องนอน 2 ห้องน้ำ 1 ที่จอดรถ
พื้นที่ใช้สอย : 155 ตร.ม.
พื้นที่ที่ดิน : 38 ตร.วา

แปลนชั้น 1

แปลนชั้น 2

15. ธงฟ้า 150

3 ห้องนอน 2 ห้องน้ำ 1 ที่จอดรถ
พื้นที่ใช้สอย : 176 ตร.ม.
พื้นที่ที่ดิน : 45 ตร.วา

แปลนชั้น 1

แปลนชั้น 2

16. สุดคุ้ม 2

3 ห้องนอน 2 ห้องน้ำ 1 ที่จอดรถ
พื้นที่ใช้สอย : 176 ตร.ม.
พื้นที่ที่ดิน : 47 ตร.วา

แปลนชั้น 1

แปลนชั้น 2

17. คุ้มค่า 3

3 ห้องนอน 2 ห้องน้ำ 0 ที่จอดรถ
พื้นที่ใช้สอย : 176 ตร.ม.
พื้นที่ที่ดิน : 38 ตร.วา

แปลนชั้น 1

แปลนชั้น 2

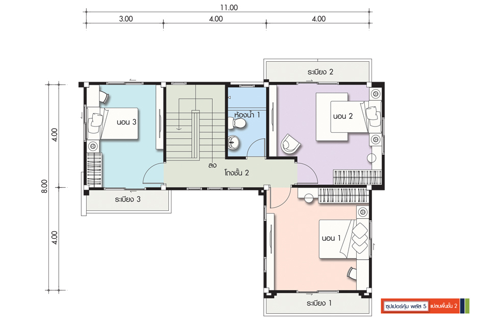
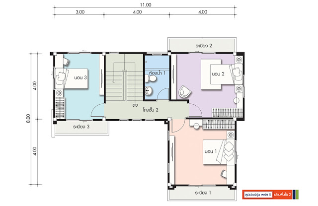
18. ซุปเปอร์คุ้ม พลัส 5

3 ห้องนอน 2 ห้องน้ำ 1 ที่จอดรถ
พื้นที่ใช้สอย : 177 ตร.ม.
พื้นที่ที่ดิน : 77 ตร.วา

แปลนชั้น 1

แปลนชั้น 2

19. สุดคุ้ม 3

3 ห้องนอน 2 ห้องน้ำ 1 ที่จอดรถ
พื้นที่ใช้สอย : 180 ตร.ม.
พื้นที่ที่ดิน : 49 ตร.วา

แปลนชั้น 1

แปลนชั้น 2

20. ซุปเปอร์คุ้ม 6

3 ห้องนอน 2 ห้องน้ำ 1 ที่จอดรถ
พื้นที่ใช้สอย : 181 ตร.ม.
พื้นที่ที่ดิน : 42 ตร.วา

แปลนชั้น 1

แปลนชั้น 2

21. สุดคุ้ม 5

3 ห้องนอน 2 ห้องน้ำ 2 ที่จอดรถ
พื้นที่ใช้สอย : 168 ตร.ม.
พื้นที่ที่ดิน : 51 ตร.วา

แปลนชั้น 1

แปลนชั้น 2

22. คุ้มค่า 2

4 ห้องนอน 2 ห้องน้ำ 0 ที่จอดรถ
พื้นที่ใช้สอย : 164 ตร.ม.
พื้นที่ที่ดิน : 36 ตร.วา

แปลนชั้น 1

แปลนชั้น 2

23. สุดคุ้ม 1

3 ห้องนอน 2 ห้องน้ำ 1 ที่จอดรถ
พื้นที่ใช้สอย : 172 ตร.ม.
พื้นที่ที่ดิน : 49 ตร.วา

แปลนชั้น 1

แปลนชั้น 2

24. ซุปเปอร์คุ้ม 5

3 ห้องนอน 2 ห้องน้ำ 1 ที่จอดรถ
พื้นที่ใช้สอย : 181 ตร.ม.
พื้นที่ที่ดิน : 42 ตร.วา

แปลนชั้น 1

แปลนชั้น 2

25. Mini Colour 2

4 ห้องนอน 3 ห้องน้ำ 2 ที่จอดรถ
พื้นที่ใช้สอย : 185 ตร.ม.
พื้นที่ที่ดิน : 50 ตร.วา

แปลนชั้น 1

แปลนชั้น 2

26. Life Box 192

3 ห้องนอน 2 ห้องน้ำ 1 ที่จอดรถ
พื้นที่ใช้สอย : 192 ตร.ม.
พื้นที่ที่ดิน : 51 ตร.วา

แปลนชั้น 1

แปลนชั้น 2

27. First Home 4

4 ห้องนอน 3 ห้องน้ำ 1 ที่จอดรถ
พื้นที่ใช้สอย : 193 ตร.ม.
พื้นที่ที่ดิน : 49 ตร.วา

แปลนชั้น 1

แปลนชั้น 2

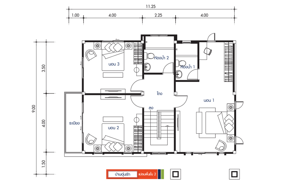
28. อุ่นรัก

3 ห้องนอน 3 ห้องน้ำ 2 ที่จอดรถ
พื้นที่ใช้สอย : 199 ตร.ม.
พื้นที่ที่ดิน : 54 ตร.วา

แปลนชั้น 1

แปลนชั้น 2

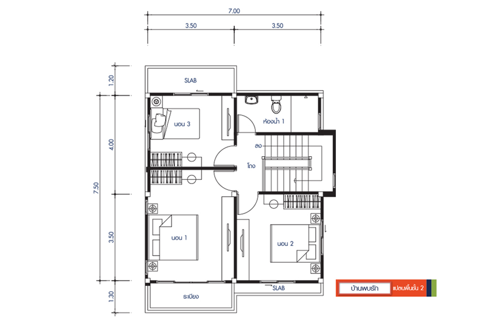
29. เพราะรัก

4 ห้องนอน 2 ห้องน้ำ 1 ที่จอดรถ
พื้นที่ใช้สอย : 199 ตร.ม.
พื้นที่ที่ดิน : 45 ตร.วา

แปลนชั้น 1

แปลนชั้น 2

แบบบ้านสามชั้น (ทาวน์โฮม)

30. Compact Townhome 9

3 ห้องนอน 3 ห้องน้ำ 1 ที่จอดรถ
พื้นที่ใช้สอย : 196 ตร.ม.
พื้นที่ที่ดิน : 54 ตร.วา

แปลนชั้น 1

แปลนชั้น 2

แปลนชั้น 3

หากเพื่อนๆ สนใจอยากสั่งซื้อหรืออยากสร้างบ้านสำหรับครอบครัวเล็กแบบนี้ล่ะก็ สามารถติดต่อสอบถามรายละเอียดเพิ่มเติมได้จากข้อมูลด้านล่างนี้เลยนะคะ ^_^
ที่มา : seaconhome
Email : info@seacon.co.th
โทร : 02-237-2900,
โทรสาร : 02-237-3781
เปิดอ่าน 1,063 ครั้ง